사업안내
입지환경
Premium
세대안내
관심고객등록
상담전화 1660-0487
사업안내
입지환경
Premium
세대안내
관심고객등록
세대안내
가장 대담한 하이엔드 라이프 스타일
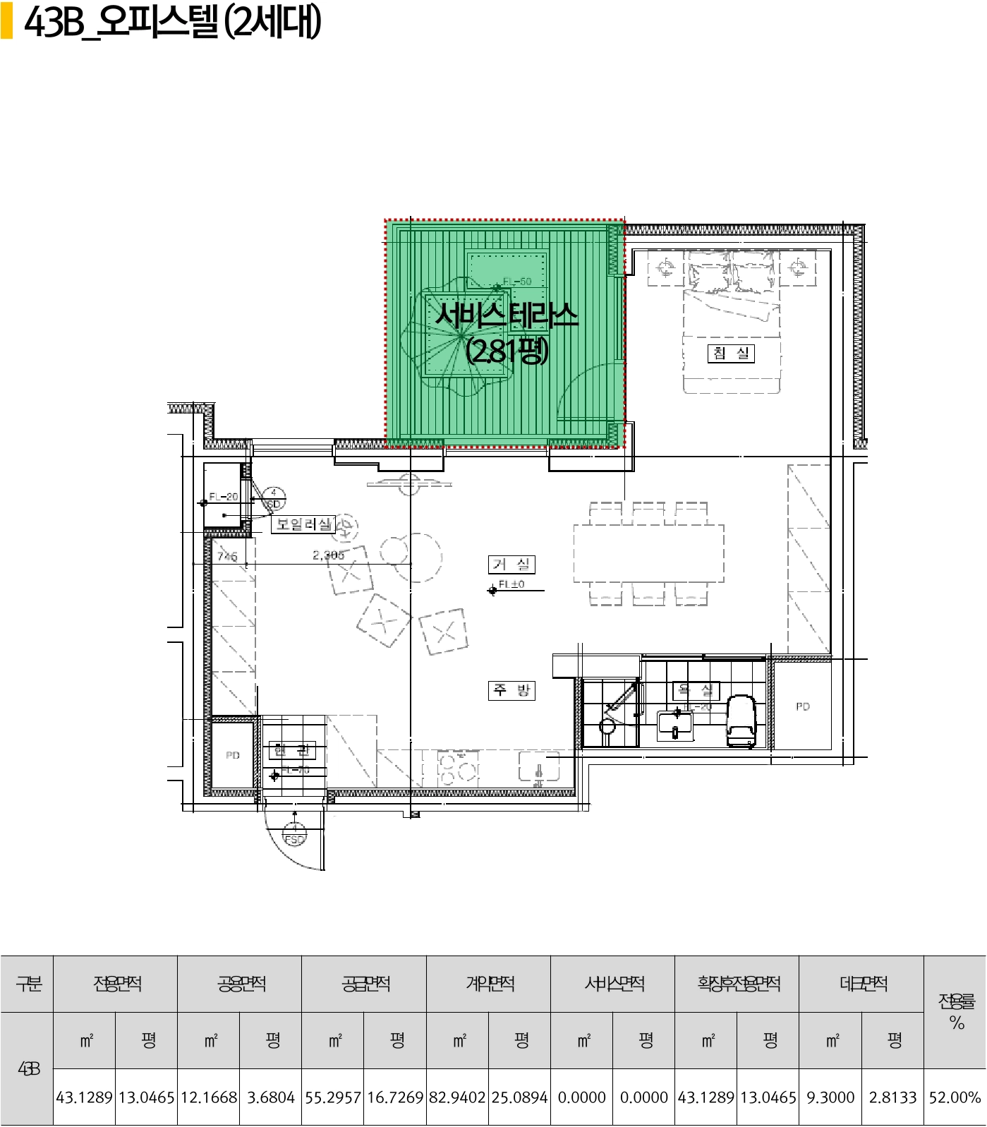
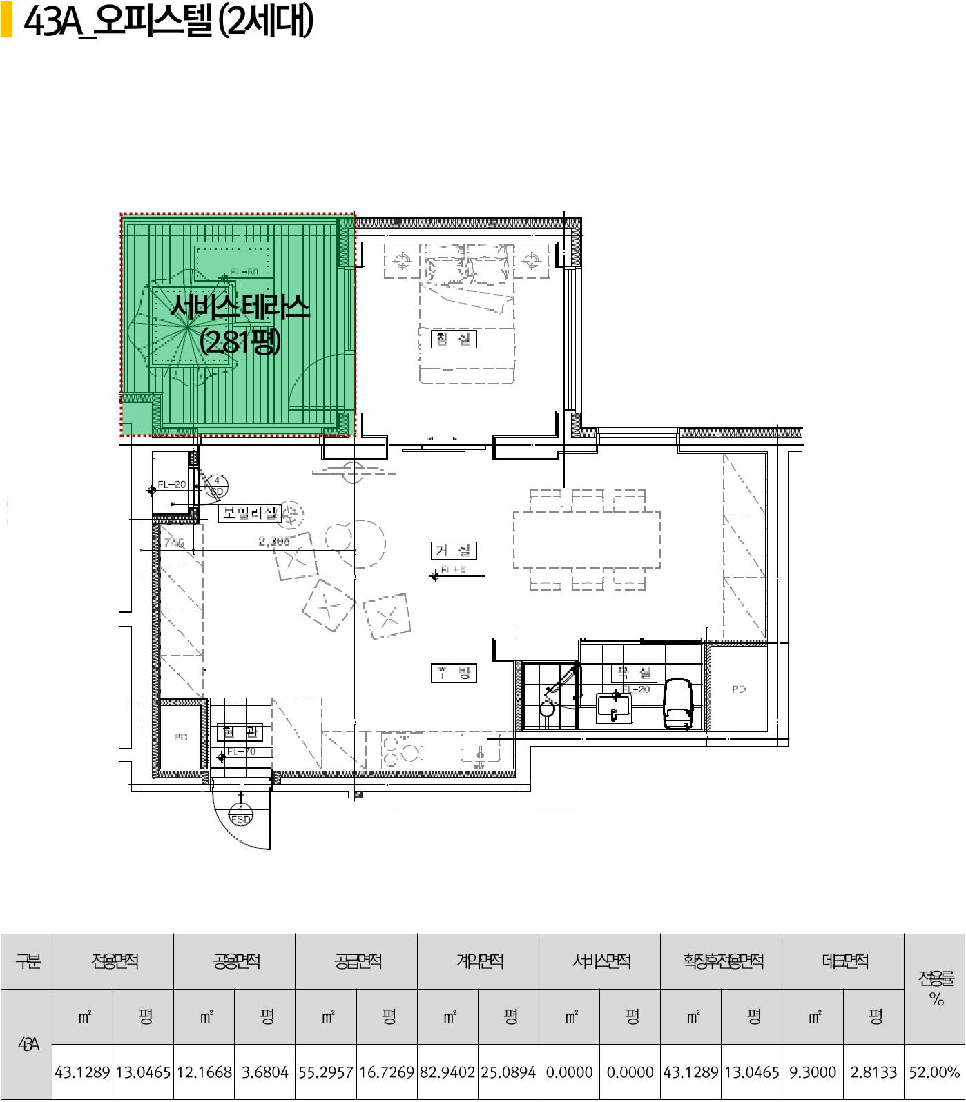
오피스텔 40, 43 Unit
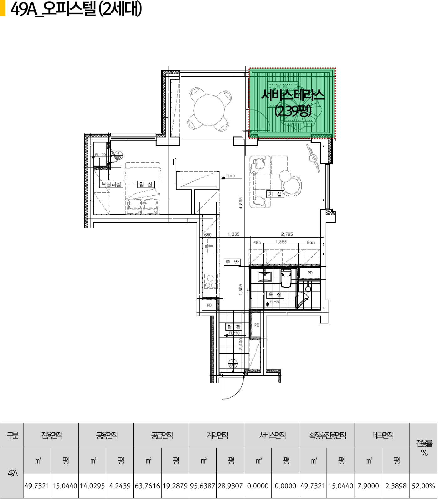
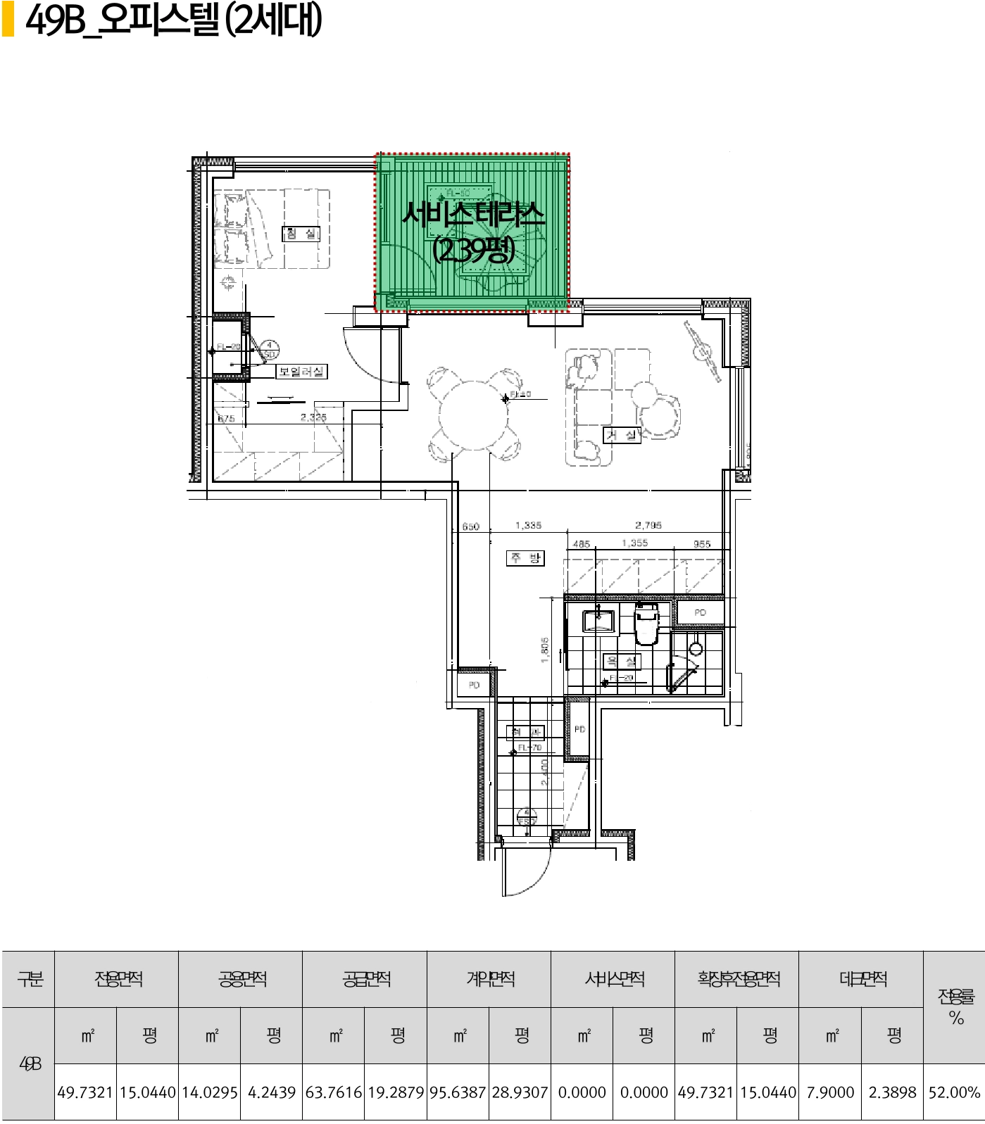
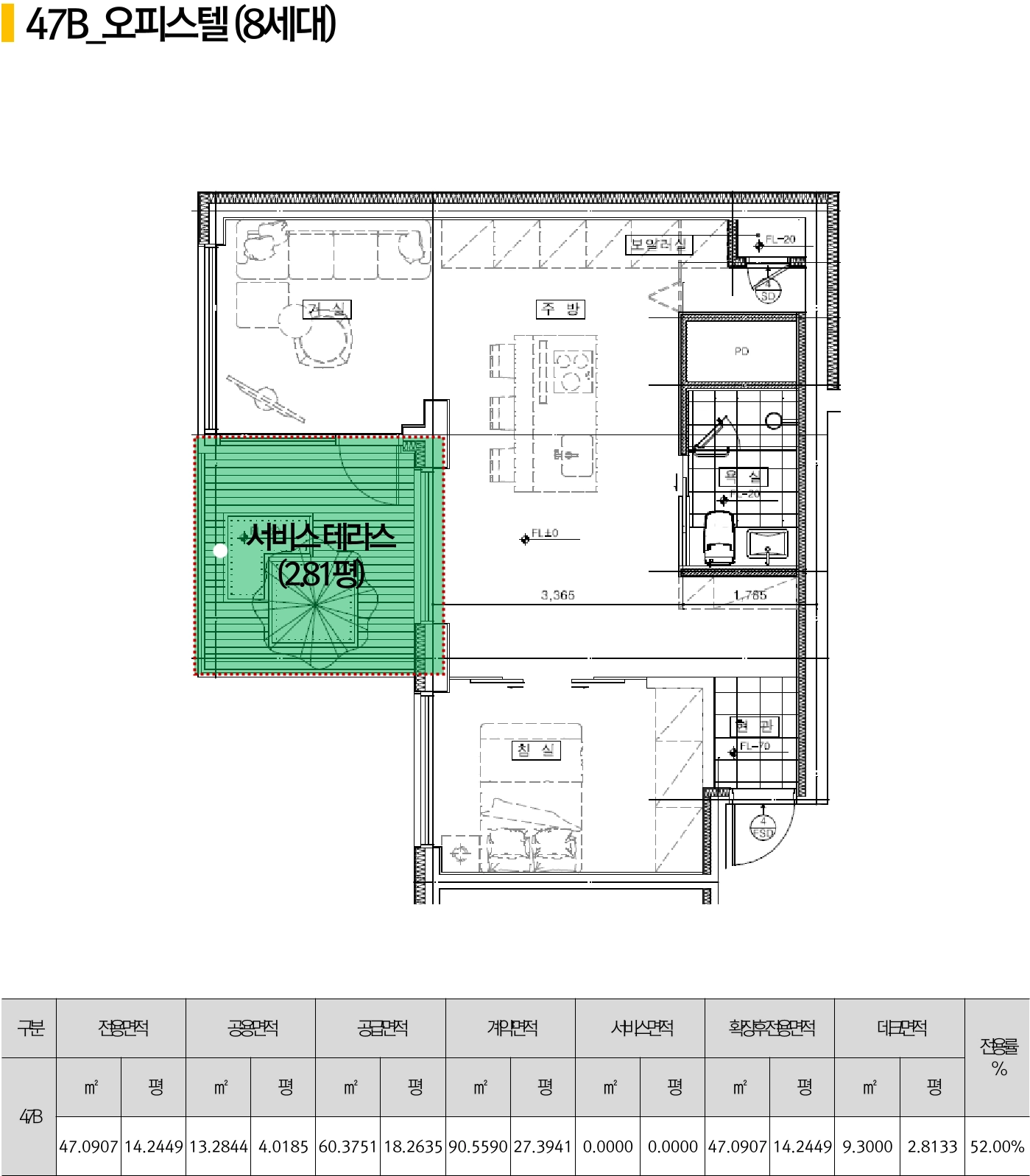
오피스텔 47, 49 Unit
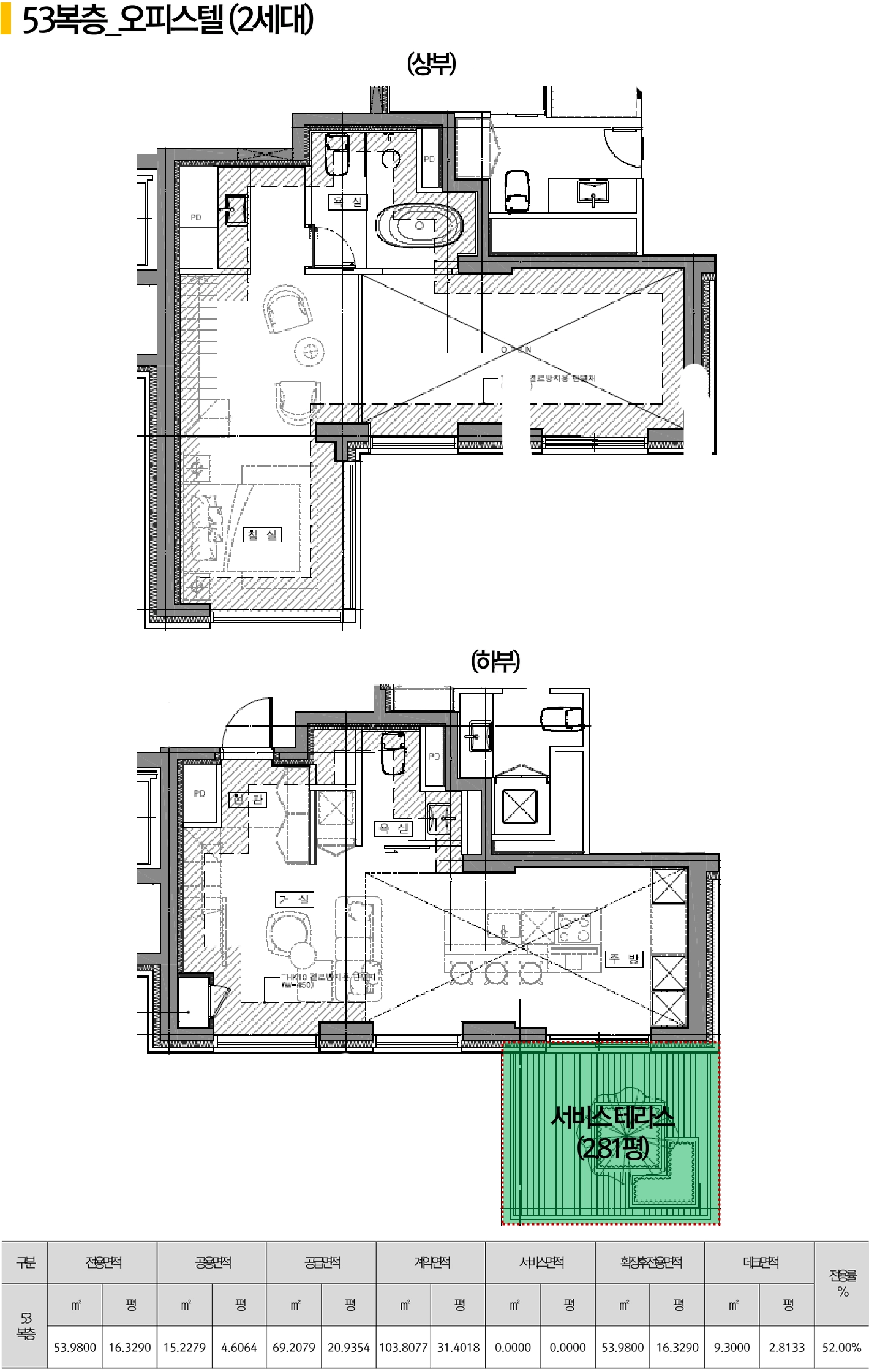
오피스텔 53, 56 Unit
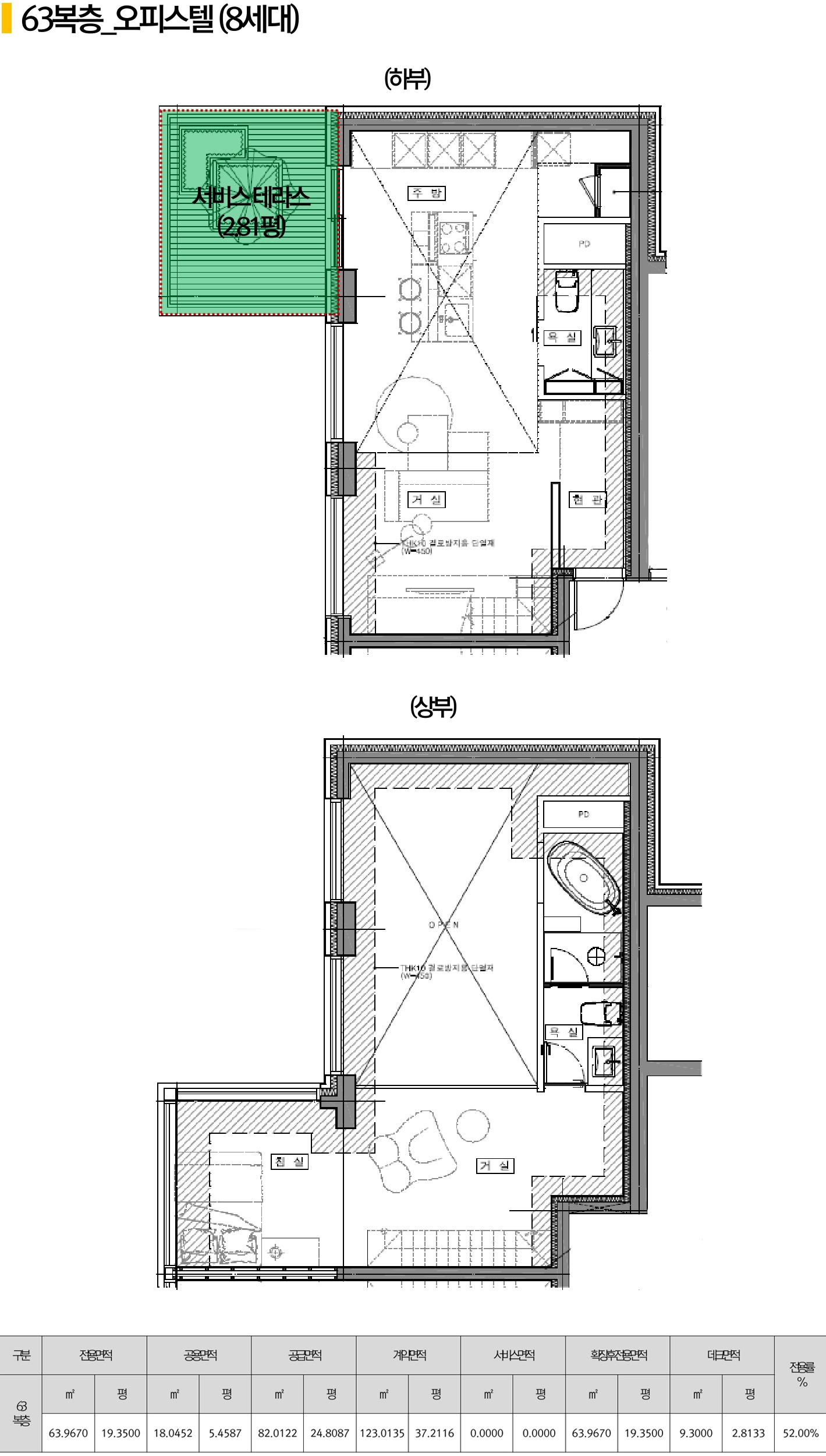
오피스텔 63, 75 Unit
도생 38 Unit
도생 51 Unit
하이엔드 라이프 스타일을 누리는 당신만을 위해
차별화된 서비스와 프라이빗 한 공간으로 시대가 동경하는 당신만의 삶을 완성합니다.
신청중
문자상담
전화상담
간편
상담신청